Espace Client
fr

Votre recherche

Nouveauté
Bandol (83150)

4 pièces - 87 m²

BANDOL CENTRE - Maison de ville – Commerce loué + appartement T2 avec terrasse

480 000 €
Ref : 7775LV
A propos de ce bien

Rare à la vente, en plein cœur du centre-ville de Bandol, cette maison de ville offre une double opportunité d’investissement : un revenu locatif immédiat et un fort potentiel de valorisation.

Cette propriété se compose de deux niveaux :

Rez-de-chaussée : local commercial de 30 m²
Actuellement loué 780 €/mois, avec un bail commercial 9 ans en cours (échéance 2028).
Il comprend une surface principale, une réserve et des sanitaires.
Un revenu locatif sécurisé et pérenne grâce à un emplacement stratégique, à deux pas du port et des commerces.

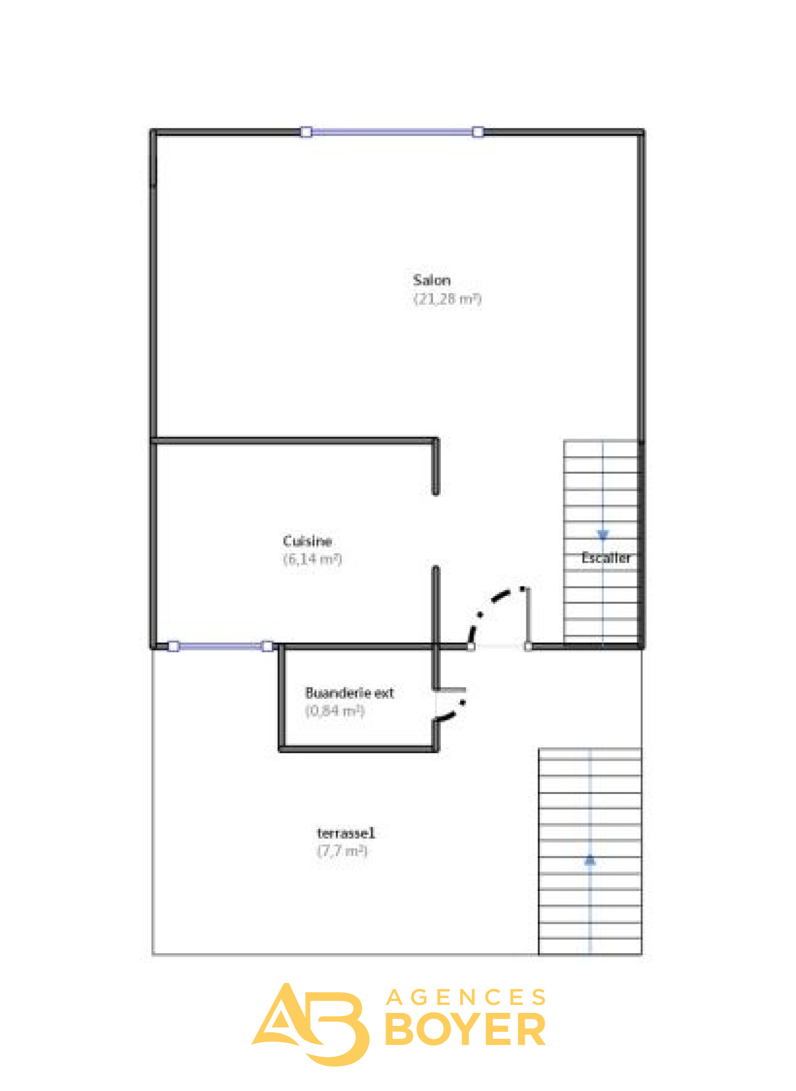
Étage : appartement T2 en duplex de 52,44 m²
Accessible par une entrée indépendante, il propose un séjour lumineux avec cuisine ouverte, une chambre confortable, une salle de bain avec baignoire, ainsi qu’une agréable terrasse et une charmante cour intérieure.
Cet appartement peut être utilisé en résidence principale, location annuelle ou location saisonnière, offrant une rentabilité modulable selon vos objectifs.

Les atouts de cette maison de ville :

  • Emplacement recherché au cœur de Bandol

  • Commerce loué offrant revenus immédiats

  • Logement indépendant à l’étage avec espace extérieur

  • Investissement patrimonial complet et sécurisé

  • Surface totale : 87 m²

Une maison de ville rare, réunissant emplacement premium, rentabilité et flexibilité d’usage.

Idéal investisseur ou projet personnel avec revenus locatifs garantis.


Les informations sur les risques auxquels ce bien est exposé sont disponibles sur le site Géorisques
Descriptif de ce bien
Général
Code postal 83150
Surface loi Carrez (m²) 52,44 m²
Nombre de chambre(s) 1
Nombre de pièces 4
Nombre de niveaux 2
Détails
Nb de salle de bains 1
Terrasse OUI
Cave NON
Année de construction 1947
Quartier centre ville
Composition
Rez de chaussée
COMMERCE - PIECE 1 18.65 m²

COMMERCE - PIECE 2 6.35 m²

WC 1.37 m²

Etage 1
salon/sejour 19.53 m²

cuisine 6.14 m²

buanderie 0.84 m²

terrasse 7.7 m²

Etage 2
Dégagement 3.35 m²

WC 1.6 m²

salle de bain 4.60 m²

chambre 17.26 m²

Financier
Prix de vente honoraires TTC inclus 480 000 €
Prix de vente honoraires TTC exclus 468 000 €
Honoraires TTC à la charge acquéreur 2,5%
Taxe foncière annuelle 2 872 €
Energie
DPE GES
Autour du bien
  • Commerces et santé
  • Loisirs
  • Ecoles
  • Transports
  • Pratique
Contacter pour ce bien
L'agence
Téléphone 04 94 29 52 27
Adresse
6, rue Pierre Toesca - CS 90001 83150 Bandol

* Champ obligatoire

Les informations recueillies sur ce formulaire sont enregistrées dans un fichier informatisé par La Boite Immo agissant comme Sous-traitant du traitement pour la gestion de la clientèle/prospects de l'Agence / du Réseau qui reste Responsable du Traitement de vos Données personnelles. La base légale du traitement repose sur l'intérêt légitime de l'Agence / du Réseau. Elles sont conservées jusqu'à demande de suppression et sont destinées à l'Agence / au Réseau. Conformément à la loi « informatique et libertés », vous disposez des droits d’accès, de rectification, d’effacement, d’opposition, de limitation et de portabilité de vos données. Vous pouvez retirer votre consentement à tout moment en contactant directement l’Agence / Le Réseau. Consultez le site https://cnil.fr/fr pour plus d’informations sur vos droits. Si vous estimez, après avoir contacté l'Agence / le Réseau, que vos droits « Informatique et Libertés » ne sont pas respectés, vous pouvez adresser une réclamation à la CNIL. Nous vous informons de l’existence de la liste d'opposition au démarchage téléphonique « Bloctel », sur laquelle vous pouvez vous inscrire ici : https://www.bloctel.gouv.fr Dans le cadre de la protection des Données personnelles, nous vous invitons à ne pas inscrire de Données sensibles dans le champ de saisie libre.
Ce site est protégé par reCAPTCHA, les Politiques de Confidentialité et les Conditions d'Utilisation de Google s'appliquent.

Découvrir nos outils