Espace Client
fr

Votre recherche

Nouveauté
Bandol (83150)

Appartement en viager sans rente – Bandol, dernier étage, 4éme étage, vue mer panoramique, calme

280 000 €
Ref : 0020TS
A propos de ce bien

À vendre en viager occupé sans rente, rare opportunité à Bandol : appartement 2 pièces de 38 m² avec loggia de 10,60 m², garage fermé de 13 m² et cave de 2,40 m², situé au 4? et dernier étage d’un immeuble de standing les pieds dans l’eau, face aux plages de sable et à seulement 10 minutes à pied du centre-ville. Exposé plein sud, au calme absolu, avec ascenseur de plain-pied, il bénéficie d’une vue mer panoramique exceptionnelle. L’appartement a été entièrement rénové récemment et offre une belle pièce de vie de 21 m² ouvrant sur la terrasse, une chambre d’environ 10 m² et une entrée spacieuse. Le bien est proposé en viager occupé sur une tête, Monsieur de 77 ans, veuf, sans rente. Sa valeur vénale actuelle est estimée à plus de 450 000 € avec garage, ce qui en fait un placement sécurisé et attractif, idéal pour investir dans l’immobilier à Bandol tout en profitant d’un prix d’acquisition réduit. Appartement rare par sa situation privilégiée, son état irréprochable, son dernier étage au calme (au-dessus uniquement des terrasses) et sa proximité immédiate des plages et des commodités. Une véritable opportunité de placement immobilier sur la Côte d’Azur.

Descriptif de ce bien
Général
Code postal 83150
Surface loi Carrez (m²) 38,05 m²
Nombre de chambre(s) 1
Nombre de pièces 2
Etage 4
Nombre de niveaux 4
Vue VUE MER
Détails
Nb de salle de bains 1
Cuisine Américaine
Mode de chauffage Electrique
Type de chauffage Convecteur
Format de chauffage Individuel
Terrasse OUI
Nombre de garage 1
Cave OUI
Surface cave (m²) 2.40
Exposition Sud
Quartier centre ville, LE PORT
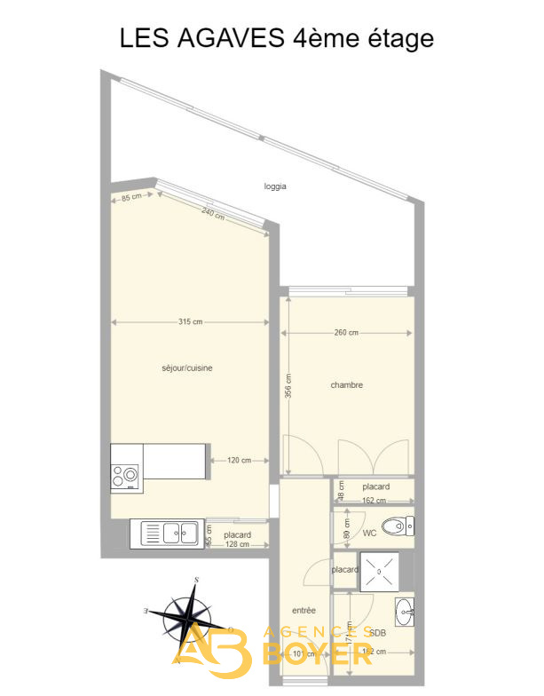
Composition
Etage -1
cave 2.40 m²

garage 13 m²

Etage 4
entrée 4.45 m²

pièce à vivre 21.10 m²

chambre 9.85 m²

WC 1.30 m²

salle de bain 1.35 m²

loggia 10.60 m²

Financier
Prix de vente honoraires TTC inclus 280 000 €
Prix de vente honoraires TTC exclus 271 100 €
Honoraires TTC à la charge acquéreur 3,18%
Charges 139 €
Taxe foncière annuelle 1 158 €
TRAD_DETAIL_infosfi_DEFAULT_valeur_venale 450 000 €
Energie
DPE GES
Autour du bien
  • Commerces et santé
  • Loisirs
  • Ecoles
  • Transports
  • Pratique
Contacter pour ce bien
L'agence
Téléphone 04 94 29 52 27
Adresse
6, rue Pierre Toesca - CS 90001 83150 Bandol

* Champ obligatoire

Les informations recueillies sur ce formulaire sont enregistrées dans un fichier informatisé par La Boite Immo agissant comme Sous-traitant du traitement pour la gestion de la clientèle/prospects de l'Agence / du Réseau qui reste Responsable du Traitement de vos Données personnelles. La base légale du traitement repose sur l'intérêt légitime de l'Agence / du Réseau. Elles sont conservées jusqu'à demande de suppression et sont destinées à l'Agence / au Réseau. Conformément à la loi « informatique et libertés », vous disposez des droits d’accès, de rectification, d’effacement, d’opposition, de limitation et de portabilité de vos données. Vous pouvez retirer votre consentement à tout moment en contactant directement l’Agence / Le Réseau. Consultez le site https://cnil.fr/fr pour plus d’informations sur vos droits. Si vous estimez, après avoir contacté l'Agence / le Réseau, que vos droits « Informatique et Libertés » ne sont pas respectés, vous pouvez adresser une réclamation à la CNIL. Nous vous informons de l’existence de la liste d'opposition au démarchage téléphonique « Bloctel », sur laquelle vous pouvez vous inscrire ici : https://www.bloctel.gouv.fr Dans le cadre de la protection des Données personnelles, nous vous invitons à ne pas inscrire de Données sensibles dans le champ de saisie libre.
Ce site est protégé par reCAPTCHA, les Politiques de Confidentialité et les Conditions d'Utilisation de Google s'appliquent.

Découvrir nos outils