Espace Client
fr

Votre recherche

Nouveauté
Bandol (83150)

2 pièces - 62,73 m²

Bandol centre-ville – T2 duplex avec terrasse au calme, 62 m² habitables – fort potentiel locatif

266 000 €
Ref : 0103
A propos de ce bien

Au cœur du centre-ville de Bandol, à quelques pas des commerces, du port et des plages, découvrez un appartement plein de charme, une opportunité rare sur ce secteur très recherché.

Ce T2 en duplex doffre un surface de 52,44 m² loi Carrez (62,73 m² habitables) et séduit immédiatement par sa luminosité et son agencement optimisé. Dès l’entrée, vous profitez d’un bel espace de vie avec cuisine ouverte, . À l’étage, la chambre offre un espace confortable et intime, complété par une salle de bain, WC indépendant et un dégagement sur le palier offrant un espace supplémentaire.

À l’extérieur, le bien se distingue par des atouts particulièrement recherchés en centre-ville : une terrasse privative, un cellier aménagé en coin buanderie.

Son emplacement exceptionnel permet de tout faire à pied, tout en offrant un cadre de vie agréable, entre mer et animation du centre de Bandol.

Que ce soit pour y vivre à l’année, en faire une résidence secondaire ou réaliser un investissement locatif, cet appartement présente un fort potentiel de valorisation dans l’une des stations balnéaires les plus prisées de la côte.

Un bien rare, alliant emplacement, charme et extérieur — à découvrir sans tarder.


Les informations sur les risques auxquels ce bien est exposé sont disponibles sur le site Géorisques
Descriptif de ce bien
Général
Code postal 83150
Surface loi Carrez (m²) 52,44 m²
Nombre de chambre(s) 1
Nombre de pièces 2
Etage 1
Nombre de niveaux 2
Ascenseur NON
Détails
Nb de salle de bains 1
Cuisine Américaine
Mode de chauffage Climatisation
Type de chauffage Air pulsé
Format de chauffage Individuel
Terrasse OUI
Sous/sol SANS
Cave NON
Année de construction 1948
Quartier centre ville
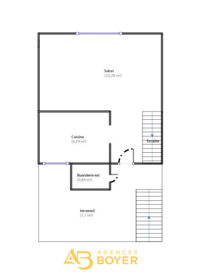
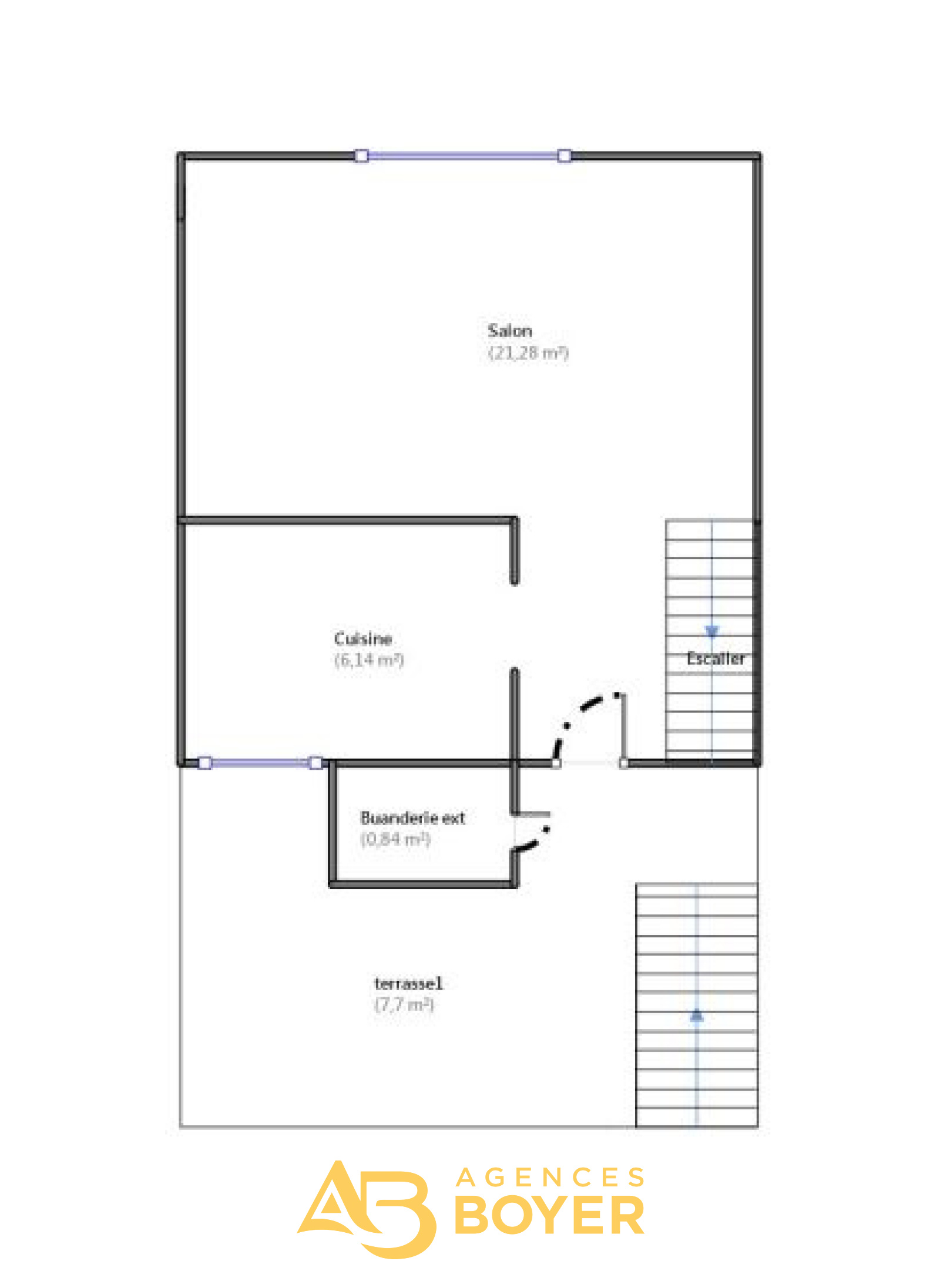
Composition
Etage 1
salon/sejour 19.53 m²

cuisine 6.14 m²

buanderie .0.84 m²

terrasse 7.7 m²

duplex - Dégagement 3.25 m²

Duplex-WC 1.6 m²

DUPLEX-CHAMBRE 17.26 m²

Financier
Prix de vente honoraires TTC inclus 266 000 €
Prix de vente honoraires TTC exclus 258 000 €
Honoraires TTC à la charge acquéreur 3,01%
Taxe foncière annuelle 820 €
Energie
DPE GES
Autour du bien
  • Commerces et santé
  • Loisirs
  • Ecoles
  • Transports
  • Pratique
Contacter pour ce bien
L'agence
Téléphone 04 94 29 52 27
Adresse
6, rue Pierre Toesca - CS 90001 83150 Bandol

* Champ obligatoire

Les informations recueillies sur ce formulaire sont enregistrées dans un fichier informatisé par La Boite Immo agissant comme Sous-traitant du traitement pour la gestion de la clientèle/prospects de l'Agence / du Réseau qui reste Responsable du Traitement de vos Données personnelles. La base légale du traitement repose sur l'intérêt légitime de l'Agence / du Réseau. Elles sont conservées jusqu'à demande de suppression et sont destinées à l'Agence / au Réseau. Conformément à la loi « informatique et libertés », vous disposez des droits d’accès, de rectification, d’effacement, d’opposition, de limitation et de portabilité de vos données. Vous pouvez retirer votre consentement à tout moment en contactant directement l’Agence / Le Réseau. Consultez le site https://cnil.fr/fr pour plus d’informations sur vos droits. Si vous estimez, après avoir contacté l'Agence / le Réseau, que vos droits « Informatique et Libertés » ne sont pas respectés, vous pouvez adresser une réclamation à la CNIL. Nous vous informons de l’existence de la liste d'opposition au démarchage téléphonique « Bloctel », sur laquelle vous pouvez vous inscrire ici : https://www.bloctel.gouv.fr Dans le cadre de la protection des Données personnelles, nous vous invitons à ne pas inscrire de Données sensibles dans le champ de saisie libre.
Ce site est protégé par reCAPTCHA, les Politiques de Confidentialité et les Conditions d'Utilisation de Google s'appliquent.

Découvrir nos outils