Espace Client
fr

Votre recherche

Bandol (83150)

2 pièces - 53,52 m²

Bandol Centre- ville – T2 traversant 53 m² en RDC avec accès PMR, double entrée, idéal locatif ou profession

225 000 €
Ref : 0002LV
A propos de ce bien

Idéalement situé au coeur centre-ville de Bandol, ce T2 traversant de 53,52 m² Loi Carrez, en rez-de-chaussée avec double accès indépendant et accès PMR, offre de nombreuses possibilités d’exploitation.

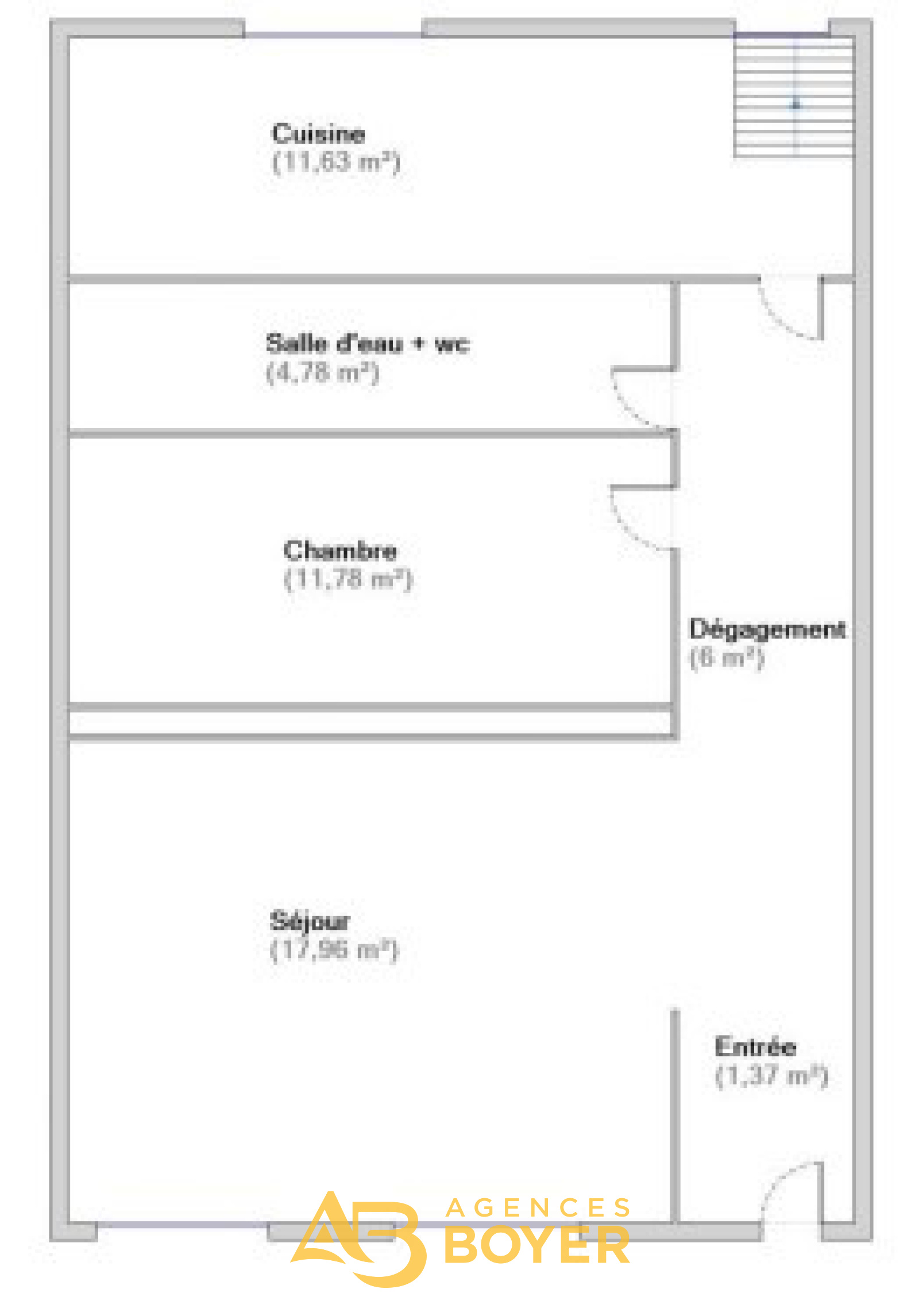
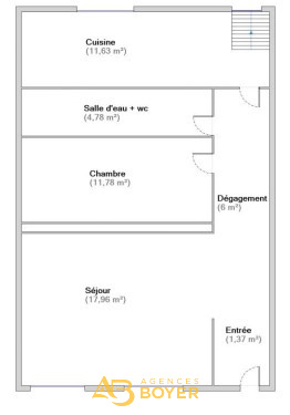
Il se compose d’un séjour spacieux, d’une cuisine indépendante, d’une chambre avec dressing et d’une salle d’eau avec WC.

Ce bien est idéal pour un investissement locatif rentable, une résidence principale, un pied-à-terre, mais également pour une profession libérale ou des bureaux, usage autorisé par la copropriété sous réserve d’un changement de destination.

Un emplacement premium en centre-ville, une forte visibilité et une accessibilité optimale font de cet appartement une opportunité rare à Bandol.



Les informations sur les risques auxquels ce bien est exposé sont disponibles sur le site Géorisques
Descriptif de ce bien
Général
Code postal 83150
Surface loi Carrez (m²) 53,52 m²
Nombre de chambre(s) 1
Nombre de pièces 2
Ascenseur NON
Détails
Nb de salle d'eau 1
Cuisine Séparée
Type de cuisine Equipée
Mode de chauffage Electrique
Type de chauffage Convecteur
Format de chauffage Individuel
Balcon NON
Terrasse NON
Cave NON
Quartier centre ville
Composition
Rez de chaussée
entrée 1.37 m²

salon/sejour 17.96 m²

Dégagement 6 m²

chambre 11.78 m²

salle d\'eau/Wc 4.78 m²

cuisine 11.63 m²

Financier
Prix de vente honoraires TTC inclus 225 000 €
Prix de vente honoraires TTC exclus 218 250 €
Honoraires TTC à la charge acquéreur 3%
Charges 97 €
Taxe foncière annuelle 780 €
Energie
DPE GES
Autour du bien
  • Commerces et santé
  • Loisirs
  • Ecoles
  • Transports
  • Pratique
Contacter pour ce bien
L'agence
Téléphone 04 94 29 52 27
Adresse
6, rue Pierre Toesca - CS 90001 83150 Bandol

* Champ obligatoire

Les informations recueillies sur ce formulaire sont enregistrées dans un fichier informatisé par La Boite Immo agissant comme Sous-traitant du traitement pour la gestion de la clientèle/prospects de l'Agence / du Réseau qui reste Responsable du Traitement de vos Données personnelles. La base légale du traitement repose sur l'intérêt légitime de l'Agence / du Réseau. Elles sont conservées jusqu'à demande de suppression et sont destinées à l'Agence / au Réseau. Conformément à la loi « informatique et libertés », vous disposez des droits d’accès, de rectification, d’effacement, d’opposition, de limitation et de portabilité de vos données. Vous pouvez retirer votre consentement à tout moment en contactant directement l’Agence / Le Réseau. Consultez le site https://cnil.fr/fr pour plus d’informations sur vos droits. Si vous estimez, après avoir contacté l'Agence / le Réseau, que vos droits « Informatique et Libertés » ne sont pas respectés, vous pouvez adresser une réclamation à la CNIL. Nous vous informons de l’existence de la liste d'opposition au démarchage téléphonique « Bloctel », sur laquelle vous pouvez vous inscrire ici : https://www.bloctel.gouv.fr Dans le cadre de la protection des Données personnelles, nous vous invitons à ne pas inscrire de Données sensibles dans le champ de saisie libre.
Ce site est protégé par reCAPTCHA, les Politiques de Confidentialité et les Conditions d'Utilisation de Google s'appliquent.

Découvrir nos outils